Mẫu Nhà 3 Tầng 1 Tum Hiện Đại Tại Quận Bình Thạnh – Không Gian Sống Sang Trọng Cho Gia Chủ Trẻ
1. Giới thiệu tổng quan mẫu nhà 3 tầng 1 tum hiện đại
Giữa lòng quận Bình Thạnh sầm uất, mẫu nhà 3 tầng 1 tum hiện đại do Kiến An Vinh thiết kế mang đến một làn gió mới cho phong cách nhà phố hiện nay. Với kiến trúc tinh tế, mặt tiền độc đáo và công năng bố trí hợp lý, ngôi nhà không chỉ là nơi ở mà còn là biểu tượng của sự tiện nghi – sang trọng – bền vững theo thời gian.
Kiến trúc sư Lê Minh Nhật đã khéo léo kết hợp giữa yếu tố thẩm mỹ và công năng, đảm bảo từng chi tiết đều phục vụ tốt nhất cho cuộc sống hiện đại của gia đình.

2. Thiết kế mặt tiền nhà 3 tầng 1 tum hiện đại
Điểm nhấn của mẫu nhà 3 tầng 1 tum này nằm ở mặt tiền được tạo khối mạnh mẽ, kết hợp giữa màu trắng chủ đạo và mảng ốp đá tự nhiên, giúp ngôi nhà toát lên vẻ đẹp thanh lịch và hiện đại.
Các ô gạch bông gió không chỉ mang lại hiệu ứng thẩm mỹ mà còn giúp lấy sáng và thông gió tự nhiên, tạo cảm giác mát mẻ, thoáng đãng cho không gian sống bên trong.
Cửa kính cường lực cùng hệ thống đèn LED âm trần góp phần tăng tính hiện đại, giúp ngôi nhà nổi bật cả ban ngày lẫn ban đêm.

3. Bố trí công năng khoa học qua từng tầng
Bản vẽ chi tiết của mẫu nhà 3 tầng 1 tum tại Bình Thạnh được Kiến An Vinh thiết kế tối ưu hóa diện tích sử dụng, đảm bảo mỗi tầng đều mang đến trải nghiệm sống tiện nghi cho các thành viên.

Tầng trệt
-
Phòng khách kết hợp chỗ để xe ô tô, bố trí gọn gàng, tiện lợi.
-
Phía sau là WC và thang máy mini, thuận tiện di chuyển giữa các tầng.

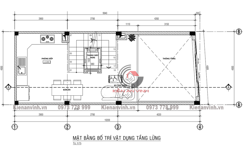
Tầng lửng
-
Phòng bếp + bàn ăn thiết kế mở, liên thông tạo cảm giác rộng rãi.
-
Góc khu thư giãn được bố trí khéo léo nhìn ra khoảng thông tầng, mang đến ánh sáng tự nhiên.

Lầu 1
-
Gồm 2 phòng ngủ, mỗi phòng đều có ban công riêng và WC riêng biệt, đảm bảo không gian riêng tư.

Lầu 2
-
Phòng ngủ master rộng thoáng, có bồn tắm lớn và ban công hướng sáng.
-
Tích hợp khu hành lang trồng cây xanh giúp cân bằng không khí, tạo cảm giác thư thái.

Tầng tum
-
Gồm phòng thờ và sân thượng rộng rãi, là nơi lý tưởng để gia đình sinh hoạt, tổ chức tiệc BBQ ngoài trời hoặc tận hưởng không khí mát mẻ buổi tối.
-
Sân phơi được bố trí gọn gàng phía sau, đảm bảo thẩm mỹ cho toàn công trình.


4. Ưu điểm nổi bật của mẫu nhà 3 tầng 1 tum
- Tối ưu không gian sống với thiết kế mở, tận dụng ánh sáng tự nhiên
- Phong cách hiện đại, trẻ trung, phù hợp với các gia đình trẻ ở đô thị.
- Công năng khoa học, có thang máy mini, tiện lợi cho người lớn tuổi.
- Chi phí xây dựng hợp lý, tối ưu vật liệu và kết cấu bền vững.
- Dễ dàng thi công trên các khu đất hẹp tại trung tâm thành phố.
5. Báo giá xây dựng mẫu nhà 3 tầng 1 tum năm 2025
Tùy vào vật liệu hoàn thiện và phong cách nội thất, chi phí xây dựng mẫu nhà 3 tầng 1 tum hiện đại dao động khoảng:
-
Xây dựng phần thô: từ 3.6 – 4.0 triệu/m²
-
Hoàn thiện trọn gói: từ 6.5 – 8.5 triệu/m²
(Báo giá mang tính tham khảo, sẽ được Kiến An Vinh báo chi tiết theo bản vẽ và yêu cầu thực tế của khách hàng.)
6. Kiến An Vinh – Đơn vị thiết kế & thi công nhà phố chuyên nghiệp tại TP.HCM
Với hơn 15 năm kinh nghiệm trong lĩnh vực thiết kế – thi công nhà phố, Công ty TNHH Thiết Kế Xây Dựng Kiến An Vinh tự hào là đơn vị tiên phong mang đến hàng ngàn công trình chất lượng cao khắp miền Nam.
Chúng tôi cam kết:
-
Thiết kế đẹp, chuẩn phong thủy, đúng nhu cầu sử dụng
-
Thi công đúng tiến độ, đúng chi phí
-
Bảo hành lâu dài, hậu mãi tận tâm
7. Liên hệ tư vấn thiết kế mẫu nhà 3 tầng 1 tum
CÔNG TY TNHH THIẾT KẾ – XÂY DỰNG KIẾN AN VINH
Trụ sở chính: 434 Nguyễn Thái Sơn, Phường 5, Quận Gò Vấp, TP.HCM
VPĐD : 52 Tân Chánh Hiệp 36, P. Tân Chánh Hiệp, Quận 12, TP.HCM
Điện thoại: (08)3715 6379 (08) 6277 0999 – Fax: (08) 3715 2415 Email : kienanvinh2012@gmail.com
Đường dây nóng : 0973 778 999 – 0902 249 297


















