Sàn vượt nhịp thường được sử dụng trong các công trình lớn có bề rộng trên 6m và ở những khu vực có lượng người qua lại cao. Không gian sàn đóng vai trò quan trọng trong việc đảm bảo an toàn. Và thoải mái cho người sử dụng. Hãy cùng công ty Kiến An Vinh tìm hiểu về thi công nhà 5 tầng kết hợp văn phòng vượt nhịp mặt tiền 10m tân cổ điển. Bên cạnh đó cũng hiểu được cách thức hoạt động của nó.
Để xây dựng lên một ngôi nhà 5 tầng bền vững theo thời gian. Song song chính là sự an toàn đi kèm với chi phí xây dựng. Điều này cũng khá đòi hỏi cao về một cấu trúc xây dựng nhà.
Gia đình Anh Hà trú tại Quận 12, Tp. Hồ Chí Minh. Sở hữu cho gia đình mình một lô diện tích đất 10x20m khá vuông. Anh hướng đến một mẫu nhà 5 tầng kết hợp văn phòng cho thuê.
Thi công nhà 5 tầng kết hợp văn phòng vượt nhịp mặt tiền 10m tân cổ điển

Nhưng để có các ý tưởng trong ngôi nhà của mình. Điều này, đòi hỏi anh phải tự tìm kiếm và đưa ra cho gia đình mình một ngôi nhà hoàn thiện. Với thời hiện đại số như hiện đại, cũng giúp anh hiểu về một điểm nhấn riêng.
Anh đã sử dụng nguồn internet để tìm kiếm cho mình một mẫu nhà 5 tầng tân cổ điển hợp lý nhất. Và thêm những ý tưởng riêng giúp ngôi nhà thêm phần hài hòa hơn.
Khi gom góp được ý tưởng, anh lại đi tìm đón vị thiết kế thi công xây dựng nhà. Do đó anh đã biết đến công ty Kiến An Vinh cũng có văn phòng 52 Tân Chánh Hiệp 36, P. Tân Chánh Hiệp, Quận 12, Tp. Hồ Chí Minh.

Anh đã chủ động liên hệ và nhờ công ty tư vấn thêm. Không những thế anh cũng khá tìm hiểu sâu về “ thi công sàn vượt nhịp dành cho nhà cao tầng ”. Anh biết sử dụng vượt nhịp cũng giúp cho gia đình mình khá nhiều chi phí.
Khi nhận được yêu cầu của anh, kiến trúc sư Kiến An Vinh đã có buổi làm việc trực tiếp. Cũng như phác họa lên cho gia đình anh một mẫu nhà 5 tầng tân cổ điển 10x20m đẹp.
Và phác họa lên những điểm nhấn của sàn vượt nhịp, giúp anh dễ hình dung hơn. Tạo nên sự vững chắc trong ngôi nhà mà anh hướng đến. Trên đây là những ảnh thiết kế 3D nhà 5 tầng kết hợp văn phòng mặt tiền 10m tân cổ điển.
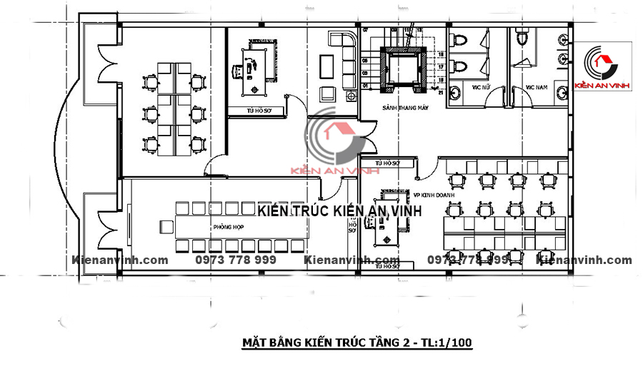
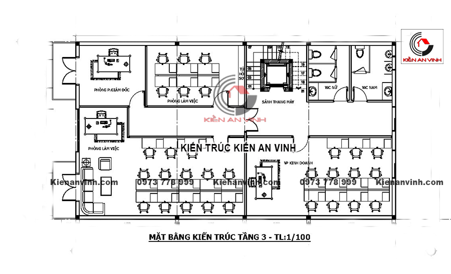
Kiến trúc nhà 5 tầng 10x20m kết hợp văn phòng sàn vượt nhịp

==> xem thêm : mẫu nhà 5 tầng đẹp

Sàn bê tông cốt thép là loại sàn rải phổ biến nhất hiện nay. Do được xây dựng bằng bê tông cốt thép chắc chắn. Nên sàn bê tông cốt thép có khả năng chịu lực và chống trơn trượt tốt.
Sàn thép vượt nhịp Sàn thép là một trong những loại sàn được sử dụng phổ biến nhất trong các công trình xây dựng cầu, đường.
Do kết cấu thép chắc chắn và khả năng chịu tải cao nên sàn thép có thể được sản xuất với nhiều hình dạng. Và kích thước khác nhau để đáp ứng nhu cầu của bất kỳ công trình nào.
Hình ảnh thi công sàn vượt nhịp mặt tiền 10m







Ưu điểm : là có khả năng chịu tải và chống trơn trượt tốt hơn so với các tầng thông thường, giúp đảm bảo an toàn cho người sử dụng.
Với kết cấu chắc chắn và khả năng chịu lực cao, sàn vượt nhịp có thể được sử dụng trong các công trình có chiều ngang lớn. Sàn vượt nhịp có thể được chế tạo với nhiều hình dạng. Kết hợp kích cỡ khác nhau để phù hợp với bất kỳ dự án nào.
Việc thi công, lắp đặt sàn nhịp lớn dễ dàng, nhanh chóng, giúp tiết kiệm thời gian và chi phí thi công.
Nhược điểm: việc thiết kế và xây dựng sàn nhịp lớn rất khó khăn và tốn kém, đòi hỏi tay nghề và chuyên môn cao.
Bởi sàn vượt nhịp là một giải pháp hiệu quả và an toàn để kết nối giữa các khu vực. Bên cạnh đó tăng cường tính liên kết trong các công trình xây dựng có chiều ngang nhà 10m.
Những hình ảnh thi công sàn vượt nhịp 10m trên đây. Cũng giúp quý khách hàng hiểu hơn về một cấu trúc nhà đẹp. Thể hiện điểm riêng của một ngôi nhà luôn đánh giá cao.
Quý khách muốn tìm hiểu sâu hợp về thi công sàn vượt nhịp. Liên hệ qua số điện thoại hotline : 0973 778 999 ( Mr Phong ). Để được tư vấn một cách cụ thể và chi tiết nhất.








CÔNG TY TNHH TƯ VẤN THIẾT KẾ – XÂY DỰNG NHÀ KIẾN AN VINH
Trụ sở chính: 434 Nguyễn Thái Sơn, Phường 5, Quận Gò Vấp, TP.HCM
VPĐD : 52 Tân Chánh Hiệp 36, P. Tân Chánh Hiệp, Quận 12, TP.HCM
Điện thoại: (08)3715 6379 (08) 6277 0999 – Fax: (08) 3715 2415
Email: kienanvinh2012@gmail.com
Website: https://kienanvinh.vn/
Hotline: 0973 778 999 – 0902 249 297
Từ khóa : Sàn phẳng không dầm NEVO | thi công sàn nevo


















