Trong xu hướng phát triển đô thị hiện đại. Những căn nhà phố sở hữu hai mặt tiền ngày càng được ưa chuộng nhờ khả năng đón sáng. Đón gió tốt và tạo nên vẻ đẹp nổi bật giữa khu dân cư. Mẫu nhà 5 tầng 9x14m phong cách tân cổ điển dưới đây là sự kết hợp hài hòa giữa kiến trúc sang trọng. Và công năng sử dụng tối ưu mang lại một không gian sống lý tưởng cho gia đình nhiều thế hệ.
Kiến trúc ngoại thất của ngôi nhà 5 tầng đẹp được thiết kế theo phong cách tân cổ điển sang trọng. Thanh lịch nhưng vẫn tinh giản, phù hợp với xu hướng đô thị hóa hiện đại. Căn nhà sở hữu lợi thế 2 mặt tiền, giúp kiến trúc sư có nhiều không gian.
Để thể hiện sự sáng tạo, đồng thời tăng cường khả năng đón gió và ánh sáng tự nhiên. Tổng thể công trình tạo ấn tượng mạnh với các hình khối đối xứng và đường nét mềm mại đặc trưng của phong cách tân cổ điển. Hệ mái trên tầng 4 giúp ngôi nhà cao ráo. Vững chãi mà vẫn giữ được vẻ nhẹ nhàng, thanh thoát.
Thiết kế nhà 5 tầng 9x14m 2 mặt tiền tân cổ điển đẹp

Từng tầng được phân tách rõ ràng bởi hệ phào chỉ ngang tinh tế, vừa tạo chiều sâu, vừa giúp mặt tiền không bị đơn điệu. Gam màu chủ đạo là trắng kem. Kết hợp với màu đen của lan can sắt mỹ thuật và cửa kính. Mang đến tổng thể thanh lịch, hiện đại mà vẫn mang đậm hơi thở cổ điển.
Ngoại thất của mẫu nhà 5 tầng 9x14m tân cổ điển 2 mặt tiền không chỉ gây ấn tượng bằng vẻ đẹp bề thế. Sang trọng mà còn thể hiện sự khéo léo trong bố trí không gian lấy sáng, lấy gió và tối ưu công năng. Đây là mẫu nhà lý tưởng cho những ai yêu thích sự lịch lãm. Tinh tế và đẳng cấp vượt thời gian.
Phong cách tân cổ điển trong thiết kế nhà 5 tầng 9x14m không chỉ đơn thuần là lựa chọn về mặt thẩm mỹ. Mà nét đẹp về gu sống đẳng cấp, tinh tế và bền vững. Với lợi thế hai mặt tiền, căn nhà trở thành điểm nhấn ấn tượng trên phố, là nơi đáng sống và tự hào cho cả gia đình.
Nét đẹp nhà 5 tầng tân cổ điển mặt tiền 9m

Tân cổ điển không chạy theo những hình khối phá cách như hiện đại, mà tập trung vào tỉ lệ hài hòa. Mỗi chi tiết từ chiều cao tầng, chiều rộng cửa sổ. Đến chiều sâu ban công đều được cân nhắc kỹ để đảm bảo bố cục tổng thể cân đối và có điểm nhấn.
Từng ban công nhỏ đều được chăm chút với lan can sắt rèn họa tiết hoa văn cổ điển vừa bảo đảm an toàn. Những đường nét uốn lượn mềm mại, xen kẽ họa tiết đối xứng. Tạo nên vẻ quyến rũ mà chỉ kiến trúc tân cổ điển mới có thể mang lại.
Nét đẹp nhà tân cổ điển cũng ít phào chỉ hơn những mẫu biệt thự tân cổ điển. Bởi quỹ đất cũng hạn chế, nhưng đổi lại cách bố trí cũng tận dụng cao. Song song chính là chi phí xây dựng lên ngôi nhà chính là điểm tối ưu mà nhiều chủ đầu tư quan tâm nhất.
View tổng quan nhà 5 tầng 9x14m tân cổ điển

Trong kiến trúc nhà ở đô thị hiện nay, những công trình mang phong cách tân cổ điển. Luôn thể hiện gu sống tinh tế và ổn định về tài chính của gia chủ. Không quá khoa trương, nhưng toát lên khí chất sang trọng. Và sự đầu tư bài bản về mặt thiết kế điều mà người thành đạt hướng đến.
Mẫu nhà 5 tầng 9x14m tân cổ điển 2 mặt tiền không chỉ thể hiện gu thẩm mỹ tinh tế của gia chủ. Mà còn khẳng định đẳng cấp sống hiện đại giữa lòng đô thị. Với bố trí công năng thông minh, tiện nghi, ngôi nhà này là lựa chọn lý tưởng cho các gia đình. Là một kiến trúc nhà được nhiều chủ đầu tư tìm kiếm không gian sống sang trọng. Thoáng mát và bền vững theo thời gian.

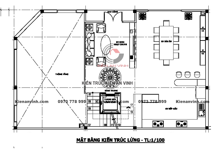
Bản vẽ nhà 5 tầng 2 mặt tiền 9x14m tân cổ điển
Tầng 1 : Gara, phòng khách, vệ sinh.
Tầng 2 : Phòng sinh hoạt chung, phòng bếp.
Tầng 3,4 : Phòng sinh hoạt chung, 2 phòng ngủ, phòng thay đồ, vệ sinh.
Tầng 5 : Phòng thờ, phòng ngủ, vệ sinh

CÔNG TY THIẾT KẾ XÂY NHÀ ĐẸP – THI CÔNG NHÀ KIẾN AN VINH
Trụ sở chính: 434 Nguyễn Thái Sơn, Phường 5, Quận Gò Vấp, TP.HCM
VPĐD : 52 Tân Chánh Hiệp 36, P. Tân Chánh Hiệp, Quận 12, TP.HCM
Điện thoại: (08)3715 6379 (08) 6277 0999 – Fax: (08) 3715 2415
Email : kienanvinh2012@gmail.com
Đường dây nóng : 0973 778 999 – 0902 249 297
Tham khảo : mẫu nhà 3 tầng| thiết kế nhà 5x20m


















