Giới thiệu tổng quan
Trong đời sống tinh thần của người Việt, hình ảnh ngôi chùa truyền thống không chỉ là nơi thờ tự, tu hành mà còn là chốn bình yên để con người tìm về với cội nguồn văn hóa dân tộc. Với kinh nghiệm hơn 15 năm trong lĩnh vực thiết kế chùa truyền thống, Kiến An Vinh tự hào mang đến những công trình mang đậm bản sắc Á Đông, vừa cổ kính, vừa trang nghiêm mà vẫn đáp ứng yêu cầu tiện nghi của thời đại.
Công trình chùa 2 tầng phong cách Á Đông dưới đây là một trong những thiết kế tiêu biểu mà Kiến An Vinh thực hiện, hội tụ đầy đủ các yếu tố kiến trúc tâm linh, kỹ thuật hiện đại và phong thủy hài hòa.


1. Tổng thể kiến trúc chùa – Hơi thở truyền thống hòa quyện hiện đại
Ngôi chùa truyền thống Việt Nam 2 tầng được thiết kế với mái ngói đỏ cong vút, những đầu đao chạm khắc tinh tế, thể hiện đúng tinh thần kiến trúc Phật giáo Việt. Toàn bộ kết cấu sử dụng hệ cột đá và gỗ tự nhiên chắc chắn, vừa bền vững theo thời gian, vừa toát lên vẻ uy nghiêm.
Phần Chánh điện và Nhà giảng được bố trí ở vị trí trung tâm – nơi diễn ra các nghi lễ và hoạt động tu học. Không gian được thiết kế mở, thoáng đãng, đón gió và ánh sáng tự nhiên, tạo cảm giác thanh tịnh, an yên cho các tăng ni và Phật tử khi đến viếng.


2. Vẻ đẹp tinh tế từ kiến trúc Á Đông truyền thống
Điểm nổi bật trong mẫu thiết kế chùa truyền thống Việt Nam này chính là sự kết hợp hài hòa giữa chất liệu cổ truyền và phong cách kiến trúc Á Đông:
-
Mái ngói đỏ truyền thống tượng trưng cho sự ấm áp và trường tồn.
-
Cột, lan can, bậc thềm bằng đá được chạm khắc hoa văn rồng, mây, sen – biểu tượng cho trí tuệ và lòng từ bi.
-
Tường gạch thô xen lẫn gỗ tự nhiên mang lại cảm giác gần gũi, chân chất của làng quê Việt.
-
Cổng Tam Quan và tượng Quan Âm tạo điểm nhấn linh thiêng, mở đầu cho không gian thanh tịnh của ngôi chùa.
Toàn bộ tổng thể công trình được phối hợp hài hòa giữa màu sắc, ánh sáng và vật liệu, thể hiện sự trang nghiêm, cổ kính nhưng vẫn toát lên vẻ sang trọng.



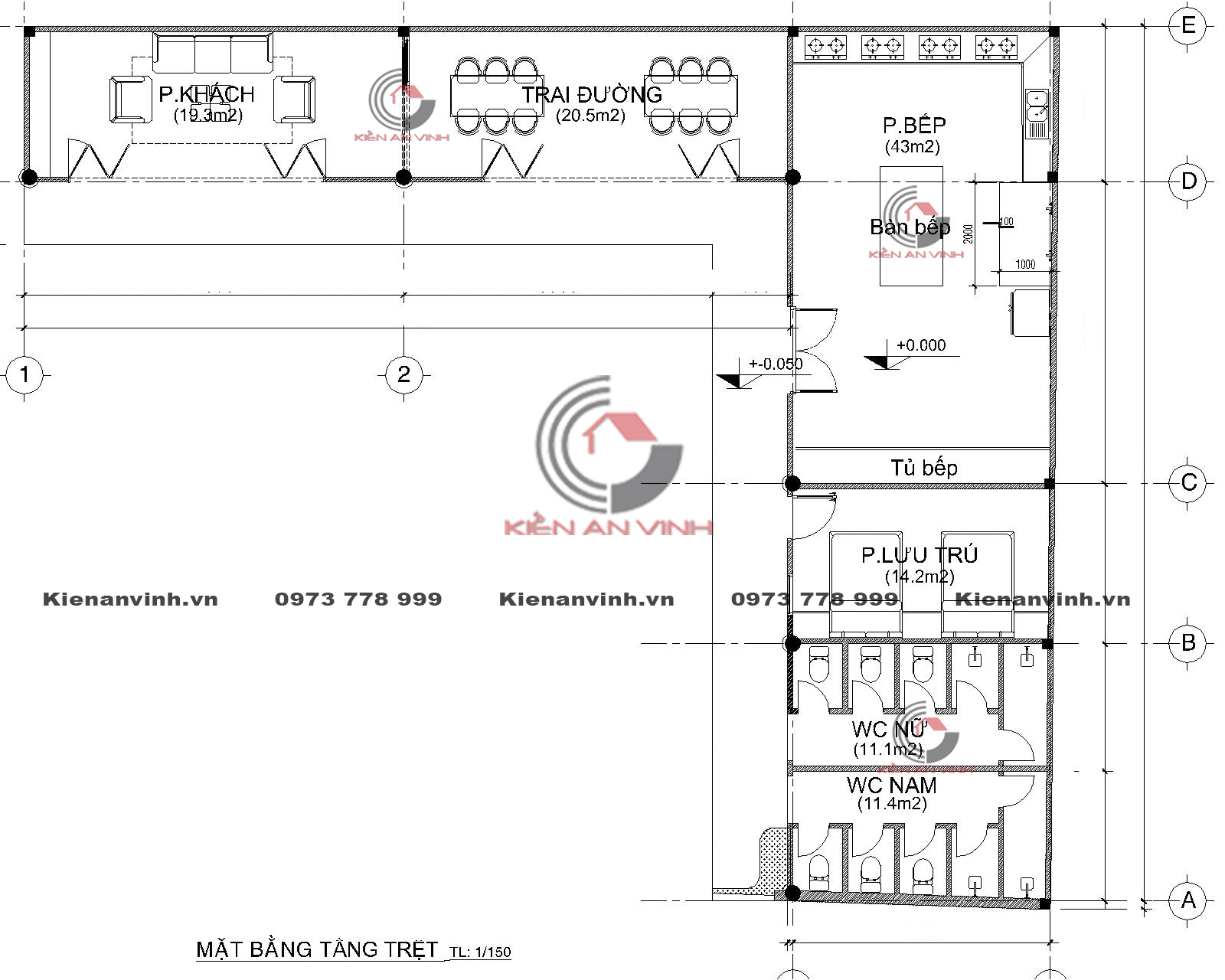
3. Công năng bố trí khoa học – Thuận tiện cho sinh hoạt tu tập
Bản vẽ mặt bằng công trình được Kiến An Vinh thiết kế khoa học, tối ưu diện tích và công năng:
-
Khu chính điện và nhà giảng:
Mặt tiền với cổng tam quan 3 lối vào làm từ đá xanh nguyên khối, khắc chữ “GIÁC QUANG” – biểu tượng Á Đông cho ánh sáng giác ngộ. Hai bên cổng là tường rào trắng viền gạch hoa văn, kết hợp cây xanh (cây bồ đề, hoa sen) tạo cảm giác gần gũi thiên nhiên. Mái cổng cong 8 mái, lợp ngói đỏ, với nghê đá canh giữ – một nét thiết kế chùa truyền thống chống tà khí theo phong thủy.
Không gian bái đường với 5 gian thờ chính, bàn thờ Tam Thế Phật bằng gỗ hương điều. Cửa võng chạm rồng phượng, sàn lát đá hoa cương chống trơn. Hệ thống cột 8 cây lim, phình giữa thân, chống đỡ mái chồng diêm – đặc trưng Á Đông giúp thông thoáng và chống nóng.


-
Khu trai đường:
Nơi tổ chức các bữa cơm chay cho tăng ni, Phật tử.
-
Khu phòng nghỉ (Phòng Ni):
Sắp xếp gọn gàng, riêng biệt, đảm bảo sự tĩnh lặng cần thiết cho việc tu hành.

-
Khu WC, kho, bếp:
Được bố trí hợp lý phía sau, đảm bảo vệ sinh và thuận tiện sử dụng.

-
Khu sân trước và tượng Phật Quan Âm:
Sân trước là hồ sen nhân tạo, với tượng Quan Âm làm trung tâm – lấy cảm hứng từ chùa Á Đông như Wat Xieng Thong (Lào) theo phong thủy “tụ thủy” để mang lại vượng khí.
Từng khu vực đều được Kiến An Vinh tính toán tỉ mỉ, đảm bảo yếu tố phong thủy chùa chiền, hướng đón sinh khí, giữ vững năng lượng tích cực cho toàn công trình.
4. Thiết kế chùa truyền thống – Tôn vinh giá trị văn hóa tâm linh Việt
Mỗi công trình thiết kế chùa truyền thống mà Kiến An Vinh đảm nhận đều hướng đến mục tiêu bảo tồn và phát huy giá trị kiến trúc dân tộc.
Chúng tôi không chỉ thiết kế theo yêu cầu công năng, mà còn chú trọng yếu tố phong thủy, hướng chùa, vị trí tượng Phật, thế đất và dòng chảy năng lượng, giúp mang lại sự bình an và hưng thịnh cho cả cộng đồng Phật tử.
Nhờ đội ngũ kiến trúc sư giàu kinh nghiệm trong thiết kế công trình tâm linh, Kiến An Vinh luôn đảm bảo:
-
Kiến trúc đúng chuẩn văn hóa Phật giáo Việt Nam.
-
Kết cấu bền vững, an toàn và trường tồn theo thời gian.
-
Thẩm mỹ tinh tế, trang nghiêm, phù hợp với từng vùng miền.
-
Giải pháp thi công tiết kiệm, tối ưu chi phí cho chủ đầu tư.
5. Kiến An Vinh – Đơn vị thiết kế chùa uy tín hàng đầu Việt Nam
Với hàng trăm công trình chùa, đền, miếu, nhà thờ họ đã thực hiện trên toàn quốc, Kiến An Vinh khẳng định vị thế tiên phong trong lĩnh vực thiết kế công trình tâm linh.
Chúng tôi cung cấp trọn gói dịch vụ thiết kế & thi công chùa, bao gồm:
-
Tư vấn phong thủy, hướng và vị trí xây dựng.
-
Thiết kế kiến trúc, kết cấu, điện – nước chi tiết.
-
Dự toán chi phí và phương án thi công thực tế.
-
Thi công hoàn thiện, đảm bảo đúng tiến độ và chất lượng.
Công trình thiết kế chùa truyền thống Việt Nam 2 tầng phong cách Á Đông do Kiến An Vinh thực hiện là minh chứng rõ nét cho năng lực sáng tạo, tinh thần tôn trọng giá trị văn hóa dân tộc và tâm huyết trong từng chi tiết thiết kế.
Nếu bạn đang tìm kiếm đơn vị thiết kế chùa truyền thống chuyên nghiệp, hãy liên hệ ngay với Kiến An Vinh để được tư vấn miễn phí và sở hữu bản thiết kế chùa chuẩn phong thủy, đẹp bền vững theo thời gian.
CÔNG TY THIẾT KẾ XÂY NHÀ ĐẸP – THI CÔNG NHÀ KIẾN AN VINH
Trụ sở chính: 434 Nguyễn Thái Sơn, Phường 5, Quận Gò Vấp, TP.HCM
VPĐD : 52 Tân Chánh Hiệp 36, P. Tân Chánh Hiệp, Quận 12, TP.HCM
Điện thoại: (08)3715 6379 (08) 6277 0999 – Fax: (08) 3715 2415 Email : kienanvinh2012@gmail.com
Đường dây nóng : 0973 778 999 – 0902 249 297


















