Gia đình Anh Khoa trú tại Quận 12, Tp. Hồ Chí Minh. Có một lô diện tích đất 6x15m khá vuông 2 mặt tiền đẹp. Gia đình anh hướng đến một mẫu thiết kế nhà 5 tầng với công năng đầy đủ nhất.
Bên cạnh đó vốn yêu nét đẹp của tân cổ điển nên anh cũng muốn ngôi nhà 5 tầng của mình thiên về nét tân cổ. Chính vì thế mà anh đã tự tìm kiếm cho mình những ý tưởng nhà 5 tầng tân cổ điển sang trọng.
Vốn am hiểu nguồn internet anh cũng biết sơ qua những mẫu nhà 5 tầng thông qua đó. Do đó anh biết đến công ty thiết kế nhà Kiến An Vinh. Là một công ty cũng có khá nhiều bộ sưu tập nhà từ nét đẹp của hiện đại. Song song chính là nét đẹp riêng của tân cổ theo từng ý tưởng riêng.
Một phần khác chính là công ty Kiến An Vinh có văn phòng quận 12. Điều này cũng giúp anh dễ trao đổi hơn trong quá trình thiết kế xây dựng lên ngôi nhà của mình.
Thiết kế nhà 5 tầng 6x15m tân cổ điển có thang máy 2 mặt tiền sang trọng tại Quận 12

Sau khi tìm hiểu kỹ về công ty, anh cũng sơ lược được ý tưởng nhà 5 tầng theo ý tưởng riêng của mình. Anh chủ động liên hệ đến công ty thiết kế nhà Kiến An Vinh. Nhờ công ty tư vấn cũng như hỗ trợ giúp anh hiểu hơn về ngôi nhà 5 tầng.
Bởi một ngôi nhà đẹp chính là sự kết hợp của chủ đầu tư và kiến trúc sư giúp ngôi nhà them phần hài hòa nhất. Sự đánh giá cao của kiến trúc sư đòi hỏi một cấu trúc nhà đẹp nhất định.
Sau khi nhận được yêu cầu của anh kiến trúc sư Kiến An Vinh đã xuống tư vấn trực tiếp. Và lấy ý kiến của anh là mẫu thiết kế nhà 5 tầng 6x15m tân cổ điển có thang máy 2 mặt tiền. Thuận tiện cho việc đi lại trong ngôi nhà.
Mặt tiền nhà 5 tầng 6x15m tân cổ điển đẹp

Khi hiểu được mong muốn của anh, kiến trúc sư Kiến An Vinh đã phác họa sơ bộ cho anh hiểu. Về mẫu nhà 5 tầng một phần cũng giúp anh nắm bắt được một quy trình trong xây dựng nhà.
Với nét đẹp của tân cổ điển, ngôi nhà cũng được toát lên bởi những yếu tố hoa mỹ. Tạo nên một cấu trúc nhà bền vững theo thời gian. Một ngôi nhà đẹp chính là yếu tố quan trọng trong một kiến trúc nhà đẹp.
Ở đây kiến trúc sư cũng tô điểm thêm những nét phào chỉ nhẹ nhàng. Giúp ngôi nhà mềm mại hơn,hoa văn cũng được tô điểm bởi hệ thống lan can. Nhấn nhá màu vàng thêm điểm phân tầng tối đa nhất.

Kiến trúc nhà 5 tầng tân cổ điển đẹp sang trọng
Sở hữu 2 mặt tiền nên ngôi nhà 5 tầng tân cổ điển cũng được đánh giá cao. Không những thế màu trắng làm tông chủ đạo giúp cho ngôi nhà thêm nổi bật nhất định. Tuy nét đẹp của tân cổ điển khá sắc xảo nhưng hệ thống kính cường lực cũng được gia đình áp dụng.
Đây cũng là nơi lấy ánh sáng tự nhiên vào trong ngôi nhà. Giúp nhà thêm nhiều điểm tinh tế hơn. Ngôi nhà đẹp chính là dưới sự am hiểu của kiến trúc sư, kết hợp thêm ý kiến của chủ đầu tư. Thể hiện nên một không gian sống đầy đủ nhất cho gia đình mình. Qua đây cũng cho thấy yếu tố tự nhiên luôn được gia đình ưu tiên nhất định.

Mặt tiền nhà 6m cũng đủ cho thấy được những ưu điểm riêng. Bên cạnh đó các hệ thống đèn cũng sử dụng khá nhiều. Giúp ngôi nhà thêm lộng lẫy vào những buổi tối. Bởi nét đẹp của nhà tân cổ điển chính là điểm giao thoa hoàn hảo giữa nét đẹp cổ điển và hiện đại.
Mang đến một giá trị nghệ thuật cao mà gia đình nào cũng mong muốn. Khi nhắc đến nhà 5 tầng tân cổ điển chính là điểm thưởng thức không gian sống thượng lưu trọn vẹn nhất. Thể hiện sự hài hòa cho ngôi nhà thêm phần sắc xảo hơn.

Kiến An Vinh chúng tôi sở hữu đội ngũ thiết kế giàu kinh nghiệm, tài năng, sáng tạo trong kiến trúc nhà đẹp. Quý khách hàng có nhu cầu vui lòng liên hệ. Chúng tôi sẽ giúp gia đình bạn có một không gian sống tối ưu nhất.

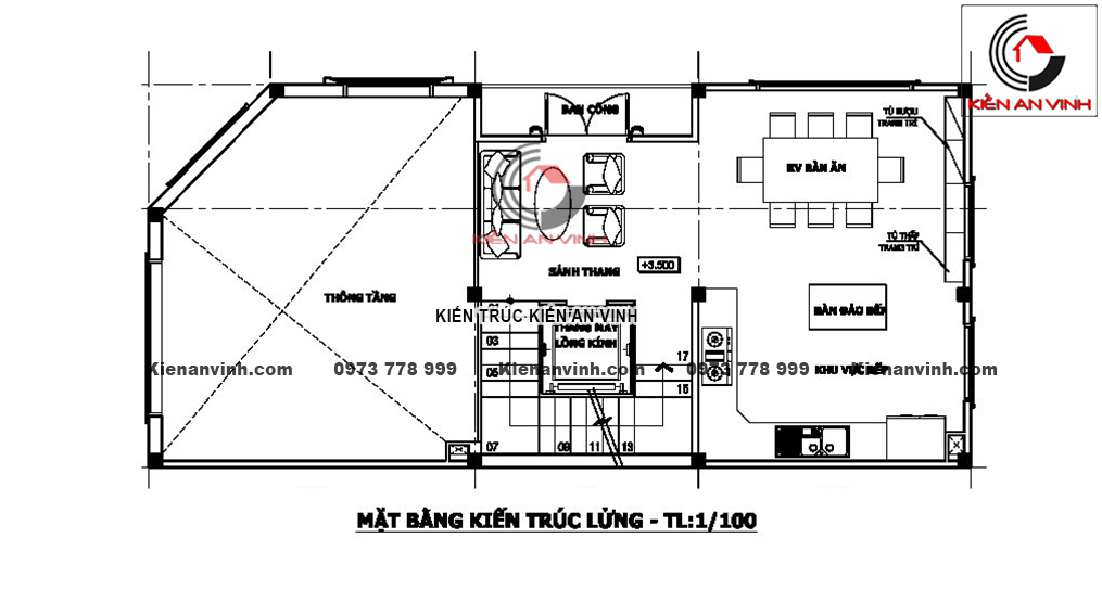
Bản vẽ thiết kế nhà 5 tầng 6x15m tân cổ điển đẹp
Tầng trệt : Phòng khách, không gian để xe
Tầng lửng : phòng bếp, vệ sinh
Tầng 2 : 2 phòng ngủ, phong live, vệ sinh
Tầng 3: 2 phòng ngủ, vệ sinh
Tầng 4 :phòng ngủ, phòng thờ, vệ sinh. Tầng mái

CÔNG TY THIẾT KẾ XÂY NHÀ ĐẸP – THI CÔNG NHÀ KIẾN AN VINH
Trụ sở chính: 434 Nguyễn Thái Sơn, Phường 5, Quận Gò Vấp, TP.HCM
VPĐD : 52 Tân Chánh Hiệp 36, P. Tân Chánh Hiệp, Quận 12, TP.HCM
Điện thoại: (08)3715 6379 (08) 6277 0999 – Fax: (08) 3715 2415
Email : kienanvinh2012@gmail.com
Đường dây nóng : 0973 778 999 – 0902 249 297
Từ khóa : thiết kế nhà ống | thiết kế nhà 5 tầng |


















