Tổng thể phối cảnh mẫu biệt thự 2 tầng mái thái 9x16m
Biểu tượng của sự tinh tế và hiện đại trong kiến trúc nhà biệt thự tại Việt Nam. Không thể không kể đến những kiểu nhà biệt thự mái thái. Điển hình kiến trúc mẫu biệt thự 2 tầng mái thái dưới đây. Không chỉ nâng cao giá trị thẩm mỹ mà còn tạo nên một không gian sống lý tưởng. Phù hợp xu hướng kiến trúc thời nay.

BT625 một kiến trúc được thiết kế theo phong cách tân cổ điển. Biệt thự 2 tầng này với tiêu chí phục vụ, cải thiện không gian sống cho chủ nhà. Đồng thời cũng giúp tối ưu và tiết kiệm hơn trong việc đầu tư, từ thiết kế đến khâu thi công xây dựng. Chính vì thế mẫu thiết kế biệt thự 2 tầng mái thái này ngày càng được nhân rộng.
Kiến trúc mẫu biệt thự 2 tầng với các chi tiết không quá cầu kì như các kiến trúc bán cổ điển khác. Hướng đến sự đơn giản, nhưng vẫn thể hiện được nét đẹp đặc trưng. Đồng thời, kiến trúc sư bố trí kết hợp các yếu tố khác góp phần tăng thẩm mỹ cũng như tính tiện ích khi đưa vào sử dụng.
Với công năng chính như sau:
Khu trệt:
– 1 Phòng khách
– 1 Bếp + khu vực bàn ăn
– 1 Phòng ngủ
– 1 WC
– Khu vực sảnh thang
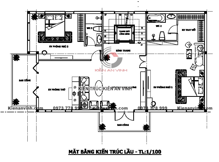
Khu kiến trúc lầu:
– 2 Phòng ngủ
– 1 Khu vực sinh hoạt chung
– 1 Phòng thờ
– Khu vực thang máy
– Ban công

Lợi thế khi đầu tư thiết kế mẫu biệt thự 2 tầng mái thái
Kiến trúc nổi bật hơn khi kết hợp với sân vườn rộng rãi. Gam màu xanh của thiên nhiên làm cho kiến trúc chủ đạo trắng càng thêm thanh lịch. Nền tường trắng khi kết hợp với các chi tiết cửa, mái, lang cang… khác màu. Càng giúp cho không gian ngoại thất trở nên bắt mắt hơn.
Sự kết hợp hoàn hảo của thẩm mỹ và công năng. Giúp cho việc đưa vào sử dụng trở nên vừa tiện nghi, vừa hiện đại. Không bị bí bách giữa các phòng, nhờ cách phân chia tính toán chi tiết của các kiến trúc sư. Kiến trúc biệt thự 2 tầng nói chung, thường được cung cấp không gian vừa đủ rộng để bài trí linh hoạt..

Hệ thống cửa gỗ sang trọng, làm nên sức hút của mẫu biệt thự tân cổ điển này. Đáp ứng tiêu chí vẻ đẹp ngoại thất, với nền tường trắng làm nổi bật tone màu gỗ nâu trầm ấm. Nét đẹp đồng bộ của hệ cửa chính, phụ, cửa sổ, được thống nhất về màu sắc và chất liệu. Làm cho kiến trúc trở nên hài hòa và đầy sang trọng.
Nét đẹp đồng bộ tiếp theo chính là hệ thống lang cang. Mang thiết kế hoa văn được ứng dụng ở mọi ban công. Được phun sơn tĩnh điện, làm cho mọi góc nhìn trở nên ấn tượng hơn.Điểm đặc biệt tiếp đến chính là hệ mái thái hiện đại. Được đánh giá cao nhờ tính năng ưu việt, chống thấm nước và độ bền cao. Đồng thời, khả năng tản nhiệt tốt, mang lại sự thoải mái, thông thoáng trong mọi điều kiện thời tiết.
Bản vẽ công năng của mẫu biệt thự 2 tầng mái thái 9x16m

Kiến trúc mẫu biệt thự 2 tầng mái thái ngoài đầu tư ngoại thất thẩm mỹ. Công năng bên trong cũng được chú trọng phân chia tỉ lệ hợp lý. Giúp tối ưu diện tích sao cho tạo cảm giác thoải mái, không bị bí bách ở các gian phòng sinh hoạt chung đến khu riêng tư.
Dưới đây là hình ảnh thể hiện chi tiết tổng quan từng mặt bằng trệt đến kiến trúc lầu. Chủ đầu tư có thể điều chỉnh theo sở thích để phù hợp với không gian diện tích nhà mình. Liên hệ trực tiếp để được tư vấn phương án tối ưu nhất cho không gian cũng như kinh phí của mình nhé.


CÔNG TY THIẾT KẾ – XÂY DỰNG KIẾN AN VINH
434 Nguyễn Thái Sơn, P.5, Q.Gò Vấp, TP.HCM
Holine: 0973.778.999 – 0902.249.297
(028) 2205.6868 – (08) 6277.0999 – Chăm Sóc Khách Hàng
(028) 2207.6868 (Kế Toán) – 0981.507.588 (Vật Tư)
(08) 3715.2415 (Kế Toán)
Website : https://kienanvinh.vn
Email: kienanvinh2012@gmail.com


















