Giới thiệu so lược mẫu biệt thự song lập 4 tầng 13x35m
Kiến trúc song lập ngày càng được nhân rộng ở thời buổi hiện nay. Là kiểu công trình có khối betong với cấu tạo là 2 kiến trúc liền kề có thiết kế ngoại thất giống nhau hoặc gần giống. BT616 là mẫu biệt thự song lập 4 tầng kết hợp kinh doanh, là kiểu biệt thự phố. Giúp các chủ đầu tư tiết kiệm khoản kinh chi trả đáng kể.
Bản vẽ biệt thự song lập 4 tầng tân cổ điển là mẫu kiến trúc vừa mang lại giá trị thẩm mỹ cao. Bởi nét đẹp đặc trưng cũng như sự cải cách trong lối thiết kế biệt thự 4 tầng này. Vừa mang lại chất lượng sống tốt. Bởi tất cả đều được kiến trúc sư cập nhật và trau chuốt, sao cho phù hợp với thời điểm hiện nay và trong nhiều năm tới.

Ở mặt bằng biệt thự song lập này là kiến trúc phù hợp với gia đình có từ 3 đến 5 người cho 1 công trình. Là loại hình xây dựng 2 kiến trúc trên một móng. Sở hữu thiết kế bên ngoài bắt mắt với loạt họa tiết hoa văn phào chỉ được thiết kế tinh tế. Qua hình ảnh có thể thấy được nét đẹp đồ sộ của kiến trúc thông qua nhiều chi tiết. Sẽ được nêu rõ bên dưới như sau.

Mặt nổi trội của bản thiết kế biệt thự song lập 4 tầng
Sự đồng nhất của 2 kiến trúc vừa tạo nên nét đẹp đồ sộ vừa làm nổi bật hơn khi so với các kiến trúc lân cận. Tuy loại hình này có sự đồng bộ về thiết kế bên ngoài, nhưng nội thất bên trong vẫn có thể lựa chọn tùy theo sở thích của mỗi chủ nhà. Mỗi kiến trúc phù hợp cho hộ gia đình có từ 3 đến 5 người. Với nhiều không gian sinh hoạt tiện nghi.
Là hình thức đầu tư giúp tối ưu phần diện tích xây dựng. Bởi kiến trúc cùng dùng chung 1 bức tường nơi giao tạo sự liên kết của 2 công trình. Vì thế giúp tiết kiệm một khoảng diện tích đáng kể cũng như kinh phí xây dựng. Thay vì 2 kiến trúc 2 thành tường, ở kiến trúc này 2 công trình chỉ cần vách tường ngăn. Tiết kiệm chi phí đáng kể cho công trình.
Các phào chỉ, hoa văn đều được thiết kế tỉ mỹ, làm cho công trình biệt thự song lập 4 tầng càng thêm ấn tượng. Bởi mang phong cách tân cổ điển, nên kiến trúc là sự hòa hợp bởi nét hiện đại và cổ điển đầy sang trọng. Tuy vậy, kiến trúc sư không lạm dụng hoa văn để tạo nên nét đặc trưng. Mà chỉ bố trí ở vài điểm nhất định, tránh tạo sự rối mắt cho tổng qua kiến trúc.
Nét đẹp ngoại thất biệt thự song lập 4 tầng kết hợp kinh doanh
Ngoài việc bố trí công năng sao cho hợp lý và tiện cho việc sử dụng. Còn cần đầu tư trau chuốt cho nét đẹp thẩm mỹ bên ngoài để việc kinh doanh trở nên thuận tiện hơn. Có thể thấy, kiến trúc nổi bật với gam màu chủ đạo trắng, với điểm khác biệt là tầng trệt màu vàng nâu sẫm. Làm nổi bật hơn cho mặt tiền cũng như nơi đón khách hàng.
Các chât liệu vật tư sử dụng gần như giống nhau. Đều được lựa chọn loại có chất lượng cao, nhằm kéo dài thời gian sử dụng. Cũng như làm tăng mỹ quan kiến trúc bởi các vật liệu cũng góp phần lớn trong việc thu hút ánh nhìn nhờ nét đẹp sang trọng. Đậm chất tân cổ điển Pháp. Góp phần nâng cao lối sống hiện đại và tiện nghi có chủ nhà.
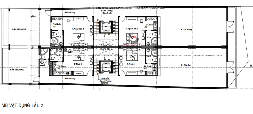
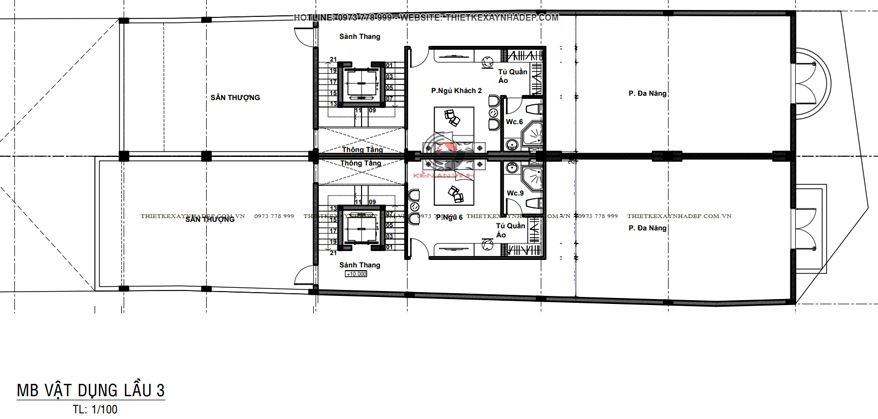
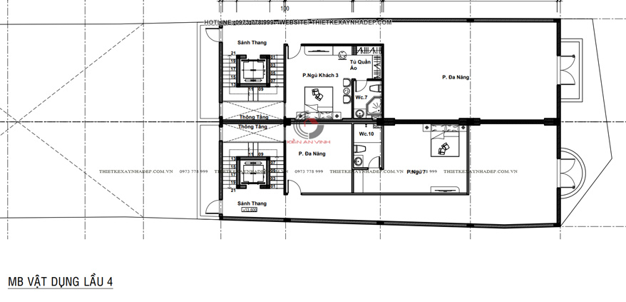
Mặt bằng công năng bên trong biệt thự 4 tầng song lập
Bản vẽ thiết kế biệt thự song lập 4 tầng tân cổ điển thể hiện rõ lối sống quyền uy. Thông qua cách bày trí logic và công năng tiện nghi bên trong. Xem hình ảnh công năng bên dưới để iểu hơn về mặt bằng thể hiện các gian phòng bên trong ra sao nhé.
>> Xem thêm: những mẫu biệt thự 4 tầng đẹp




CÔNG TY THIẾT KẾ – XÂY DỰNG KIẾN AN VINH
434 Nguyễn Thái Sơn, P.5, Q.Gò Vấp, TP.HCM
Holine: 0973.778.999 – 0902.249.297
(028) 2205.6868 – Chăm Sóc Khách Hàng
(028) 2207.6868 (Kế Toán) – 0981.507.588 (Vật Tư)
(08) 3715.2415 (Kế Toán)
Website : https://kienanvinh.vn
Email: kienanvinh2012@gmail.com


















